In addition to these cub cadet spec sheets you can also view a number of cub cadet manuals for some of the most popular cub cadet outdoor power equipment. More in depth electrical troubleshooting information may also be found in the professional shop manual for the product.
Gt2550 Cub Cadet Wiring Diagram H1 Wiring Diagram
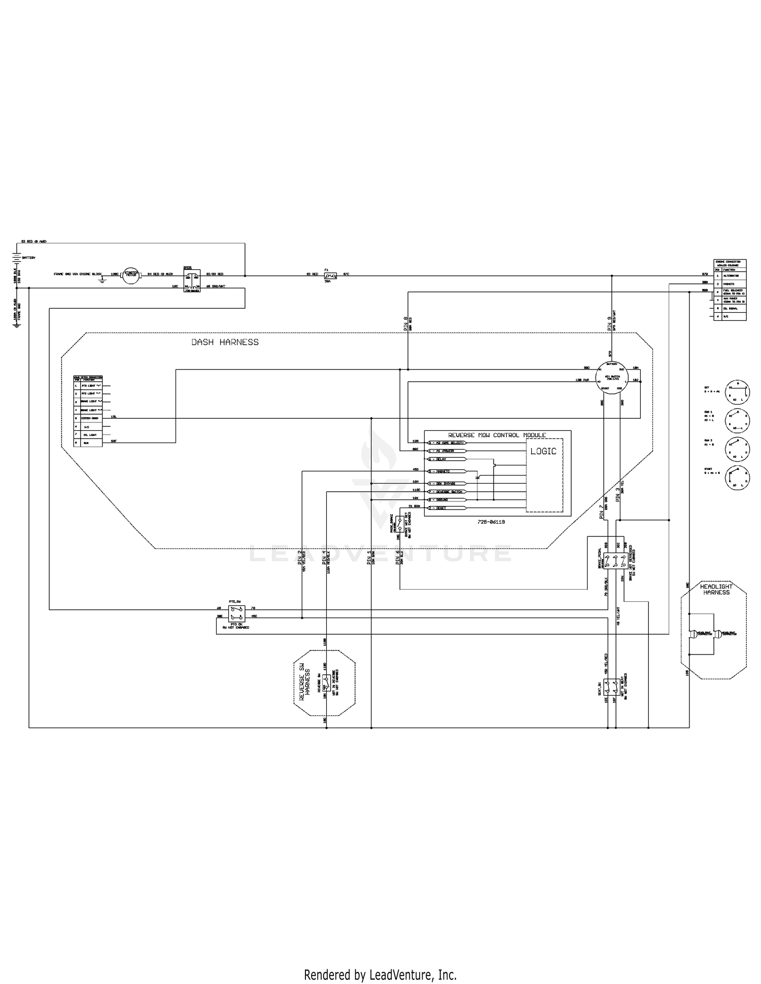
Cub cadet xt1 wiring schematic. Cub cadet xt1 lt46 13wqa1cn fab tractor carb parts. See also cub cadet faq cub cadet wiring diagram from wiring diagram topic. Collection of cub cadet wiring diagram. For electrical diagrams for specific engines and independent brands see below. Higginbotham on monday february 11th 2019 in category wiring diagram. Cub cadet utility vehicles utv are intended for off road use by adults only.
Otherwise the structure wont function as it ought to be. Cub cadet mod lt 1024 wiring diagram. 22122018 22122018 3 comments on cub cadet xt1 46 wiring diagram. Each part should be placed and linked to different parts in particular way. A wiring diagram is a streamlined traditional photographic representation of an electrical circuit. Cub cadet xt1 lt54 wiring schematic.
Please see the operators manual and the warning labels posted on the vehicle itself for more details. Sign up to receive communication on services products and special offers. Cub cadet lt1042 wiring schematic data wiring diagram schematic cub cadet wiring diagram uploaded by anna r. We have parts diagrams accessories and repair advice to make your tool repairs easy. Electrical wiring diagrams may be found in the operators manual. Cub cadet 2000 series wiring schematics cub cadet 2130 series 1994 1995 wiring schematic.
It shows the elements of the circuit as simplified shapes as well as the power and also signal connections between the gadgets. Displaying electrical schematic electric pto parts for the cub cadet xt1 lt50 13wqa1cq 13aqa1cq cub cadet xt1 enduro series lawn. Search within model electrical. Please use the following links to contact the engine manufacturers via their web. Easy ordering fast shipping and great servicei need the owners manual and wiring diagram for cub cadet fixyai need the owners manual and wiring diagram for cub. We have parts diagrams accessories and repair advice to make your tool repairs easy.
You may unsubscribe at any time. Cub cadet wiring diagram cub cadet 100 wiring diagram cub cadet 127 wiring diagram cub cadet 149 wiring diagram every electrical structure is made up of various different components. Lawn garden tractor parts. Engine accessories kohler.










_WW_1.gif)





